1523-1547 Worthington
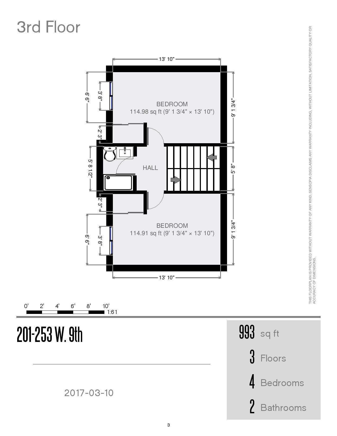
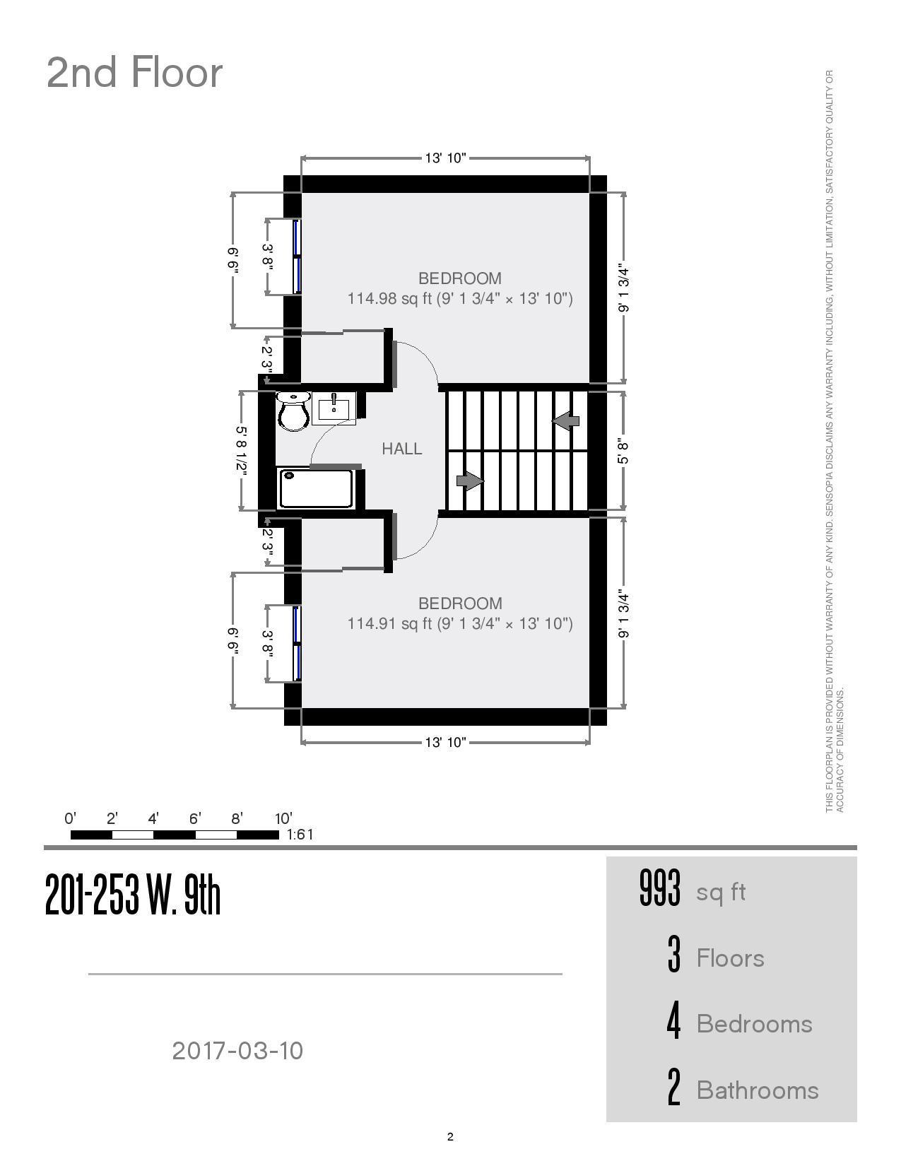
Enjoy a 4 bedroom unit for a special rate with two residents. Each roommate gets their own floor with their own bath and two bedrooms. Use the extra room for a study area, workout area, etc.!
4
BEDROOm
2
BATHROOM
4
BEDROOm
BATHROOM
Monday - Friday: 9am - 12pm, 12:30pm - 5pm
Saturday: By Appointment Only
Sunday: CLOSED
**Office hours are subject to change seasonally**