2288. High St. Apt. 1
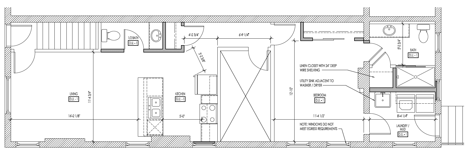
Buckeye Reconstruction 2022! Remodeled one bedroom flat with stainless steel appliances (range, refrigerator, dishwasher, microhood), washer/dryer, alarm system, central air, and ceiling fans. Off street parking available. **Attached photos depict a recently completed project but are indicative of the quality you will find at this new project. Since this project is underway right now, ask us to see floor plans!! Keep in mind that some minor adjustments may occur due to building restrictions.**
1
BEDROOm
1.5
BATHROOM













