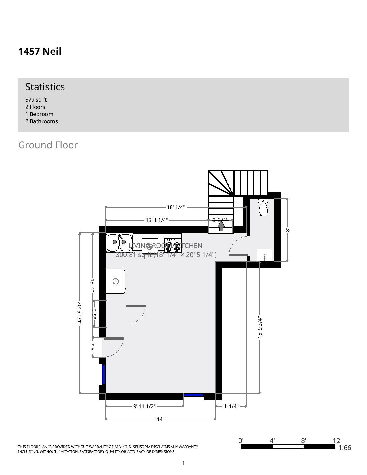
1457 Neil Ave.
Buckeye Renovation! Fully updated one bedroom, one and a half bath townhouse with stainless steel appliances (range, refrigerator, dishwasher, microhood), washer/dryer, alarm system, central air, and ceiling fans. Off Street parking available.
1
BEDROOm
1.5
BATHROOM
















