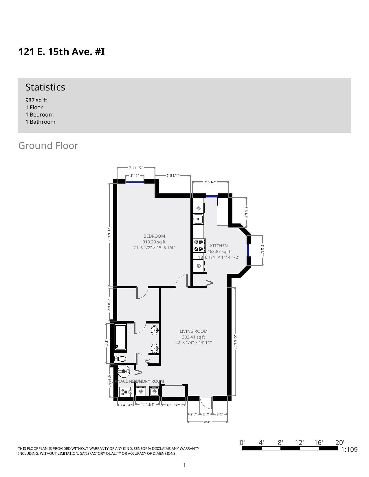
121 E. 15th Ave. Apt. I
Great central campus location! HUGE apartment! This previously renovated flat features a fully equipped kitchen (including dishwasher and microhood), alarm system, central air, and washer/dryer. Off street parking available!
1
BEDROOm
1
BATHROOM




























