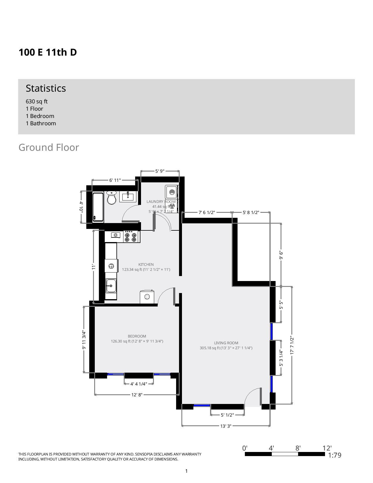
100 E. 11th Ave. Apt. D
Visit this link for Early Rental Options!
Huge apartment renovated with great amenities! One bedroom flat features hardwood floors, a fully equipped kitchen (including dishwasher and microhood), central air, and washer/dryer! Off street parking available!
View our Leasing Procedure and a copy of our Lease Agreement
View the Virtual Tour HERE
**information subject to change**
1
BEDROOm
1
BATHROOM














