Visit this link for Early Rental Options!
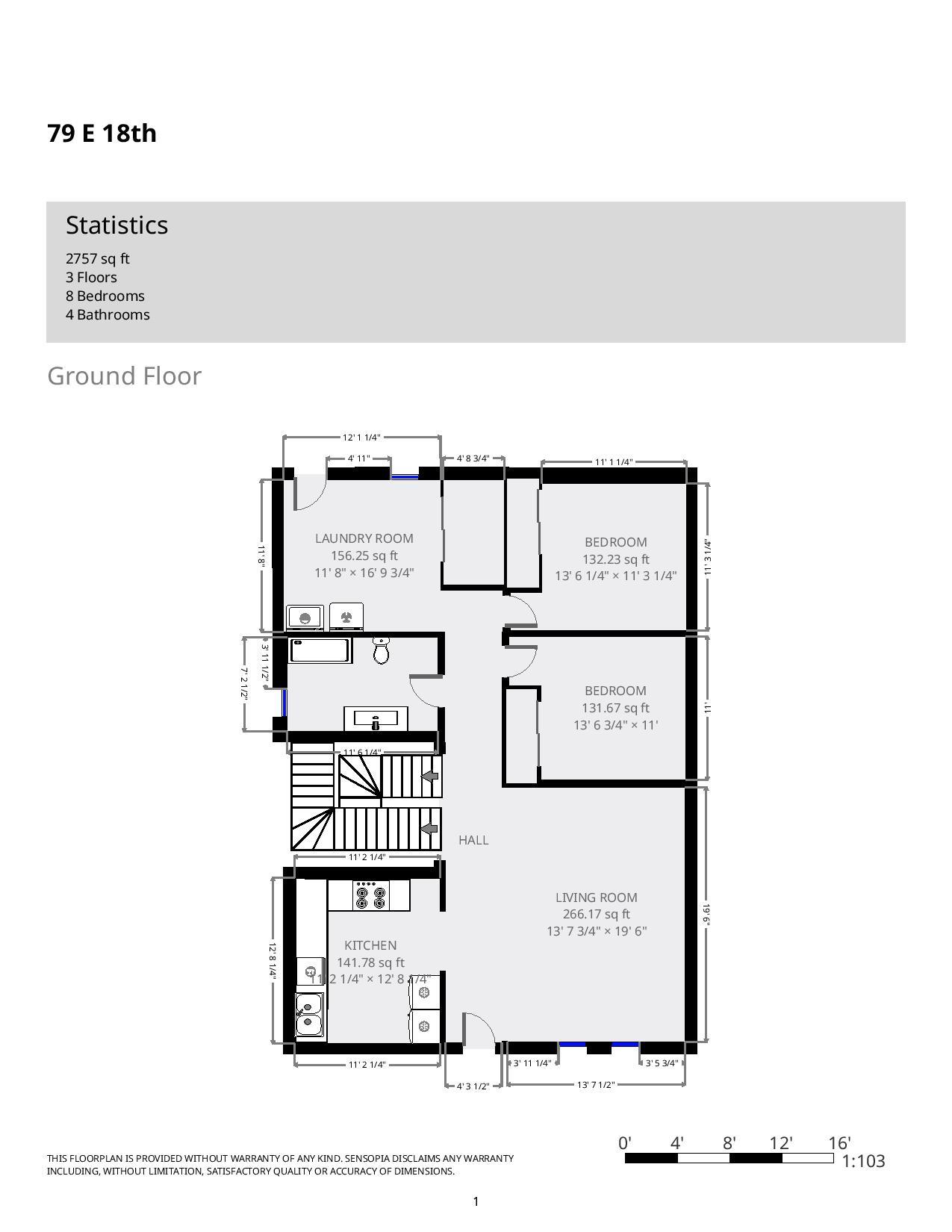
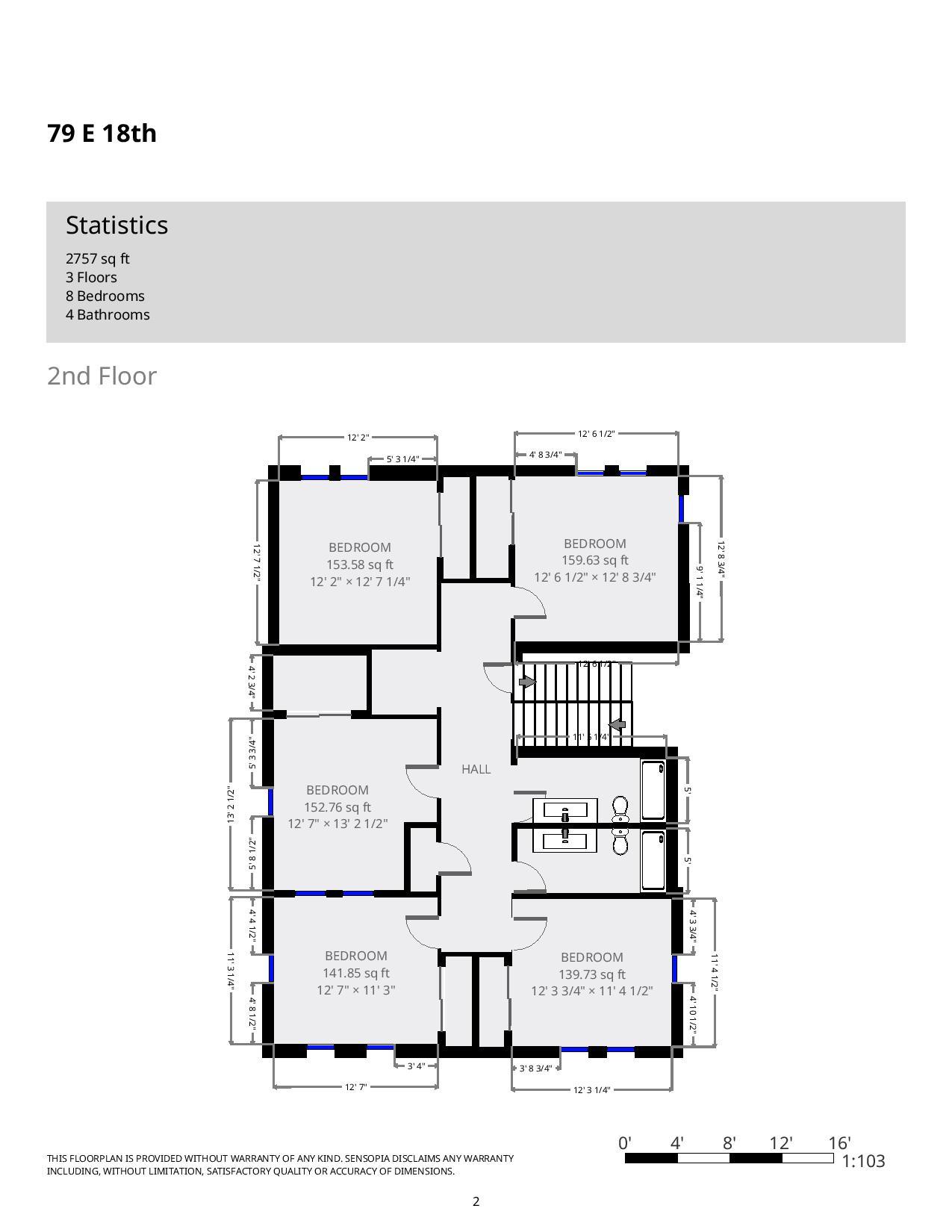
GREAT LOCATION!! Updated eight bedroom, four bath house with fully equipped kitchen (including dishwasher and microhood), two refrigerators, two washers/dryers, central air, porch and ceiling fans. Off Street parking available.
View our Leasing Procedure and a copy of our Lease Agreement
View Virtual Tour here
**information subject to change**
BEDROOm
BATHROOM




























