60 E. 18th Ave. Unit A
Visit this link for Early Rental Options!
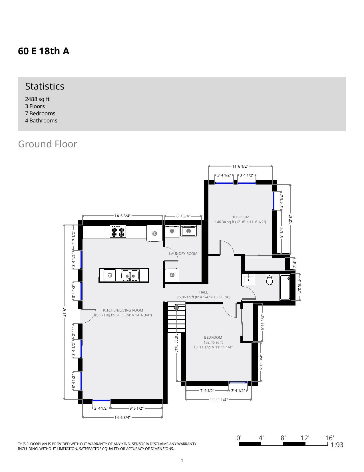
Renovated house with stainless steel appliances (range, refrigerator, dishwasher, microhood), in unit laundry, central air, porch, and ceiling fans. Off Street parking available.
View our Leasing Procedure and a copy of our Lease Agreement
**information subject to change**
BEDROOm
BATHROOM





















