Visit this link for Early Rental Options!
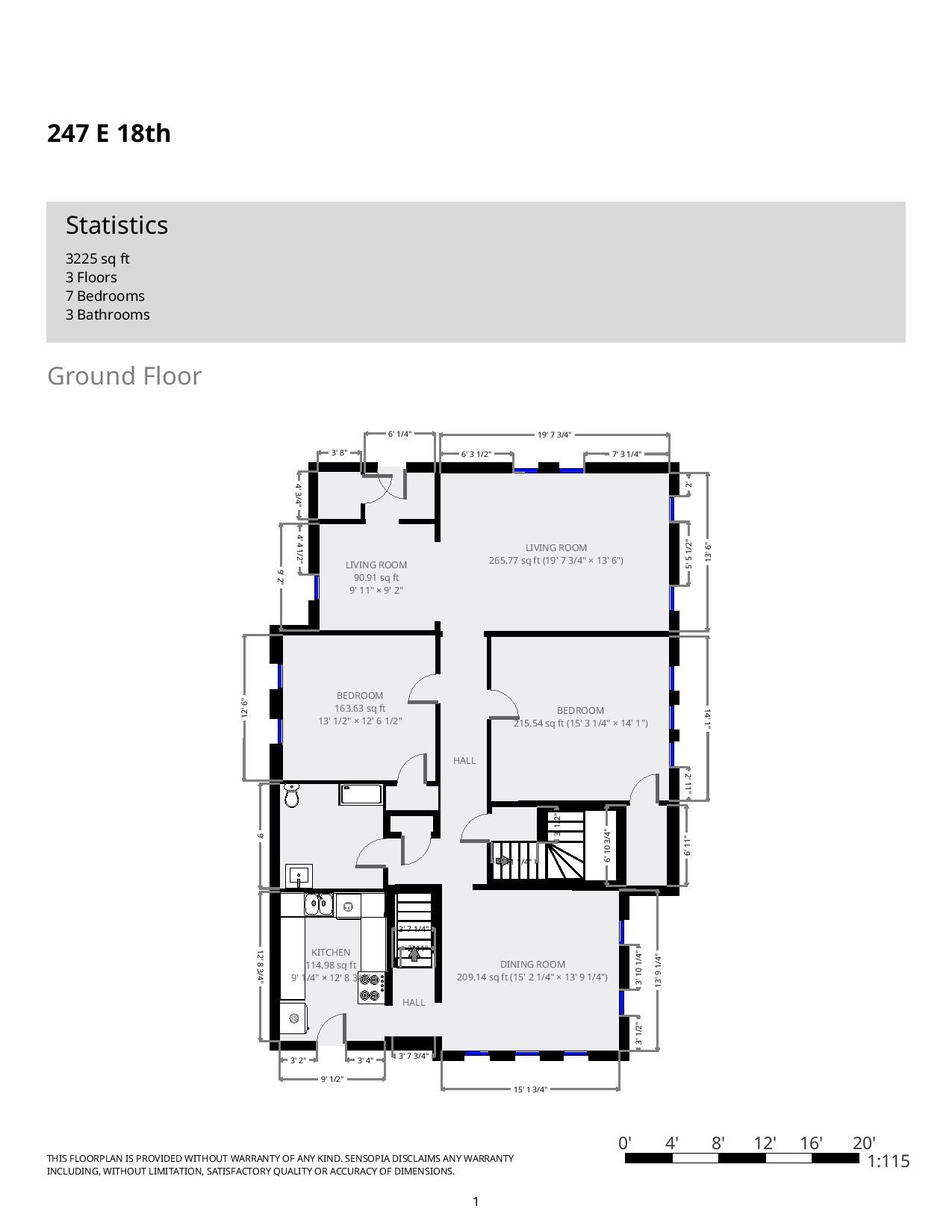
Updated seven bedroom, three bath house with fully equipped kitchen (including dishwasher and microhood), central air, washer/dryer, and ceiling fans. Located just past Indianola. Off Street parking available.
View our Leasing Procedure and a copy of our Lease Agreement
View Virtual Tour here
**information subject to change**
BEDROOm
BATHROOM































