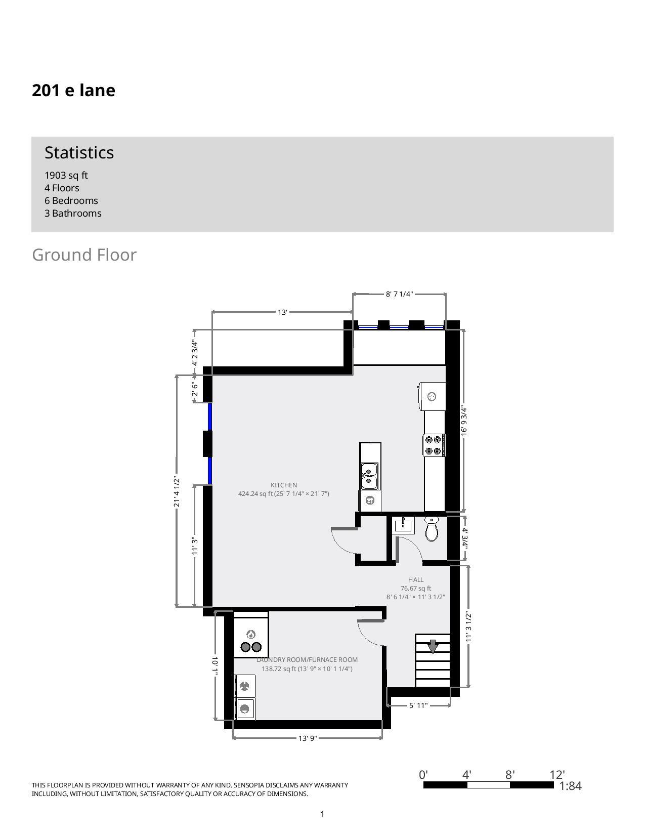
201 E. Lane Ave.
Visit this link for Early Rental Options!
Updated unit with fully equipped kitchen (including dishwasher and microhood), in unit laundry, central air, decks and ceiling fans. Off Street parking available.
View our Leasing Procedure and a copy of our Lease Agreement
View Virtual Tour HERE
**information subject to change**
6
BEDROOm
2.5
BATHROOM


















