1968 Indianola Ave. Unit B
Visit this link for Early Rental Options!
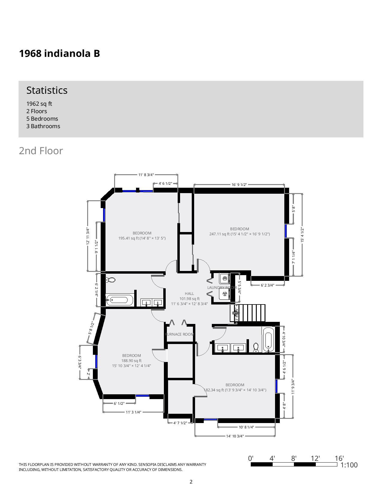
Updated five bedroom, three bath unit with fully equipped kitchen (including dishwasher and microhood), ceiling fans, central air, and in unit laundry. Off Street parking available.
View our Leasing Procedure and a copy of our Lease Agreement
View Virtual Tour HERE
**information subject to change**
BEDROOm
BATHROOM





















