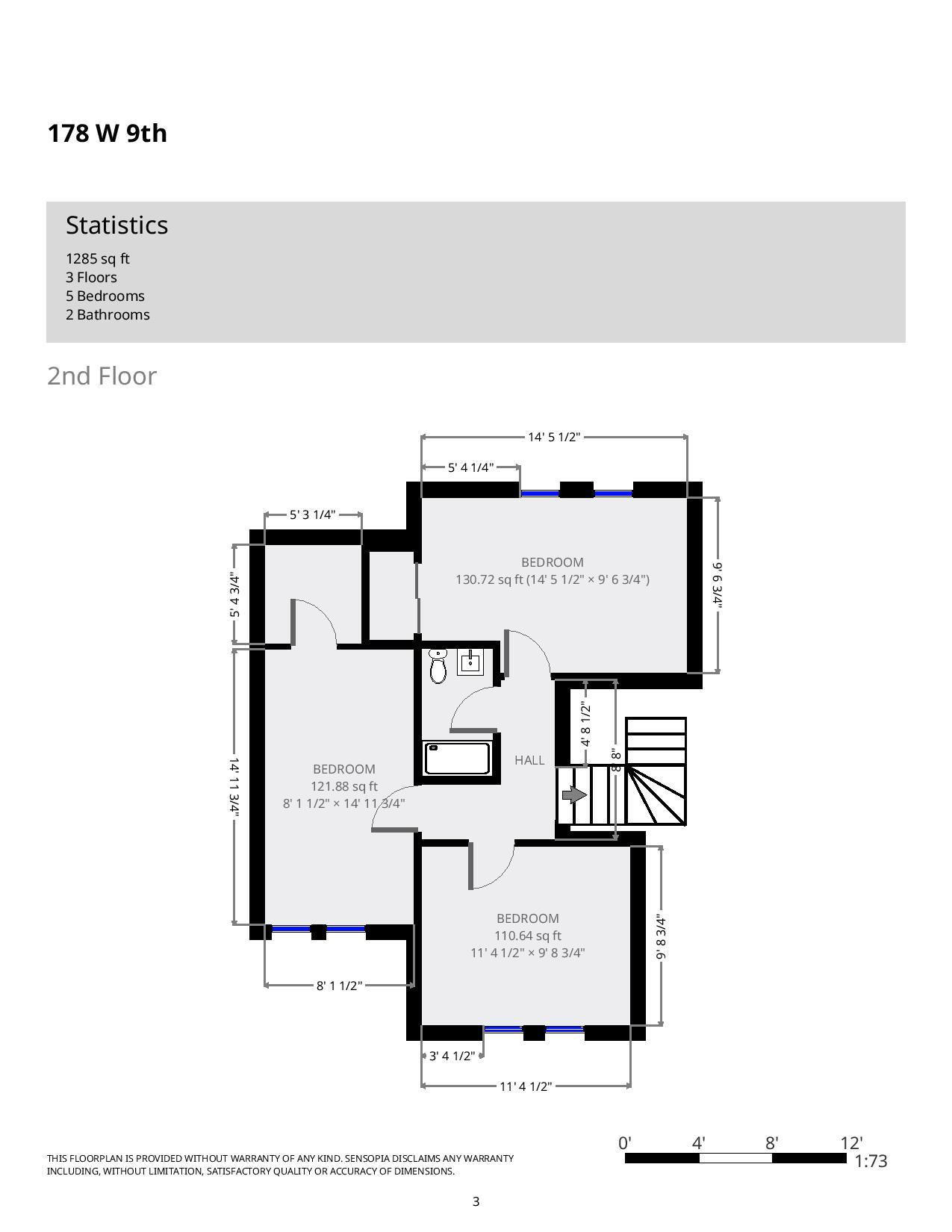
170-188 W. 9th Ave.
Updated and Affordable! Located on southwest campus, this five bedroom, two bath townhouse features remodeled, fully equipped kitchen (with dishwasher and micro hood), central air, and washer/dryer in unit! Off street parking available!
5
BEDROOm
2
BATHROOM















