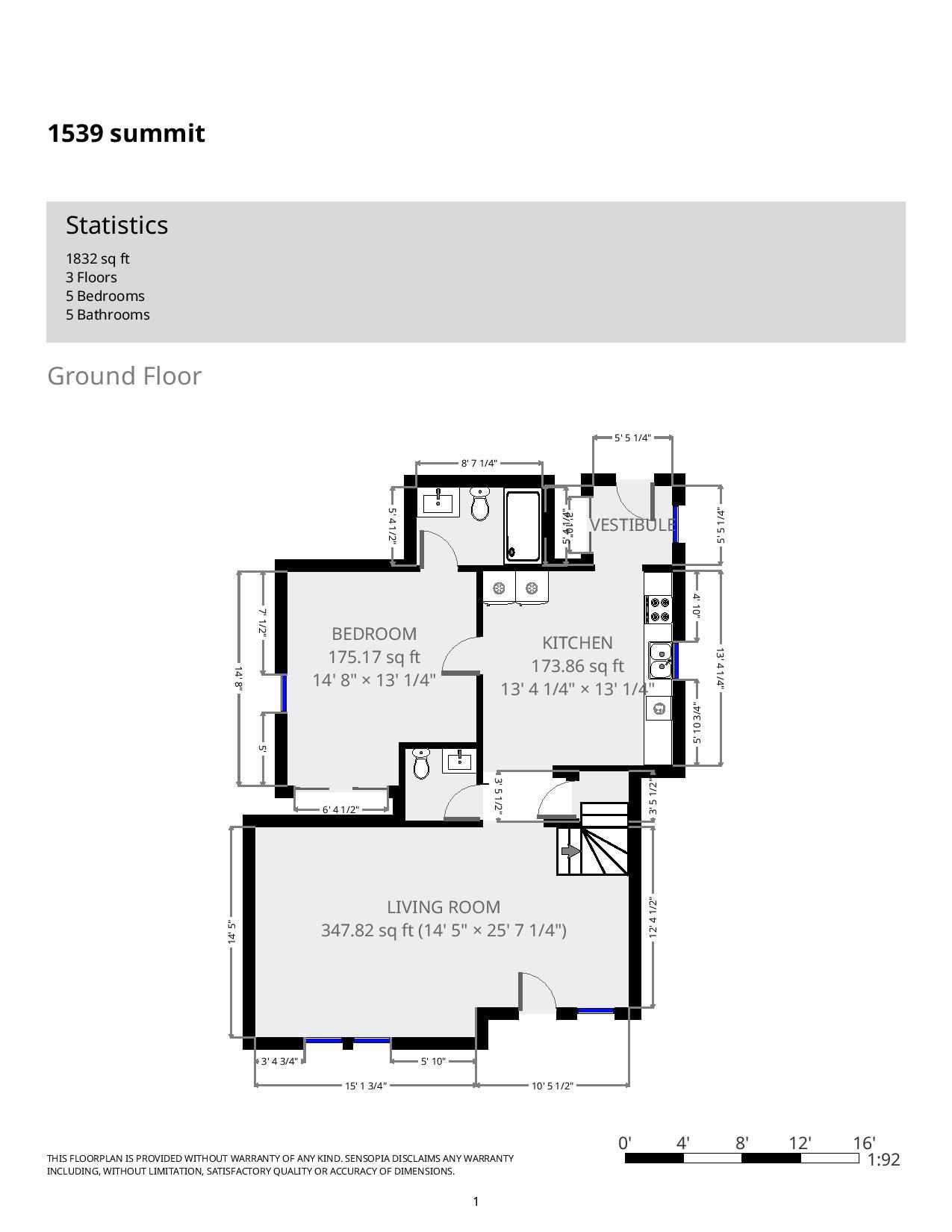
1539 Summit St.
Visit this link for Early Rental Options!
Renovated five bedroom, four and a half bath house with stainless steel appliances (range, refrigerator, dishwasher, microhood), washer/dryer, central air, off street parking, porch, and ceiling fans.
View our Leasing Procedure and a copy of our Lease Agreement
View Virtual Tour HERE
**information subject to change**
BEDROOm
BATHROOM





















