Visit this link for Early Rental Options!
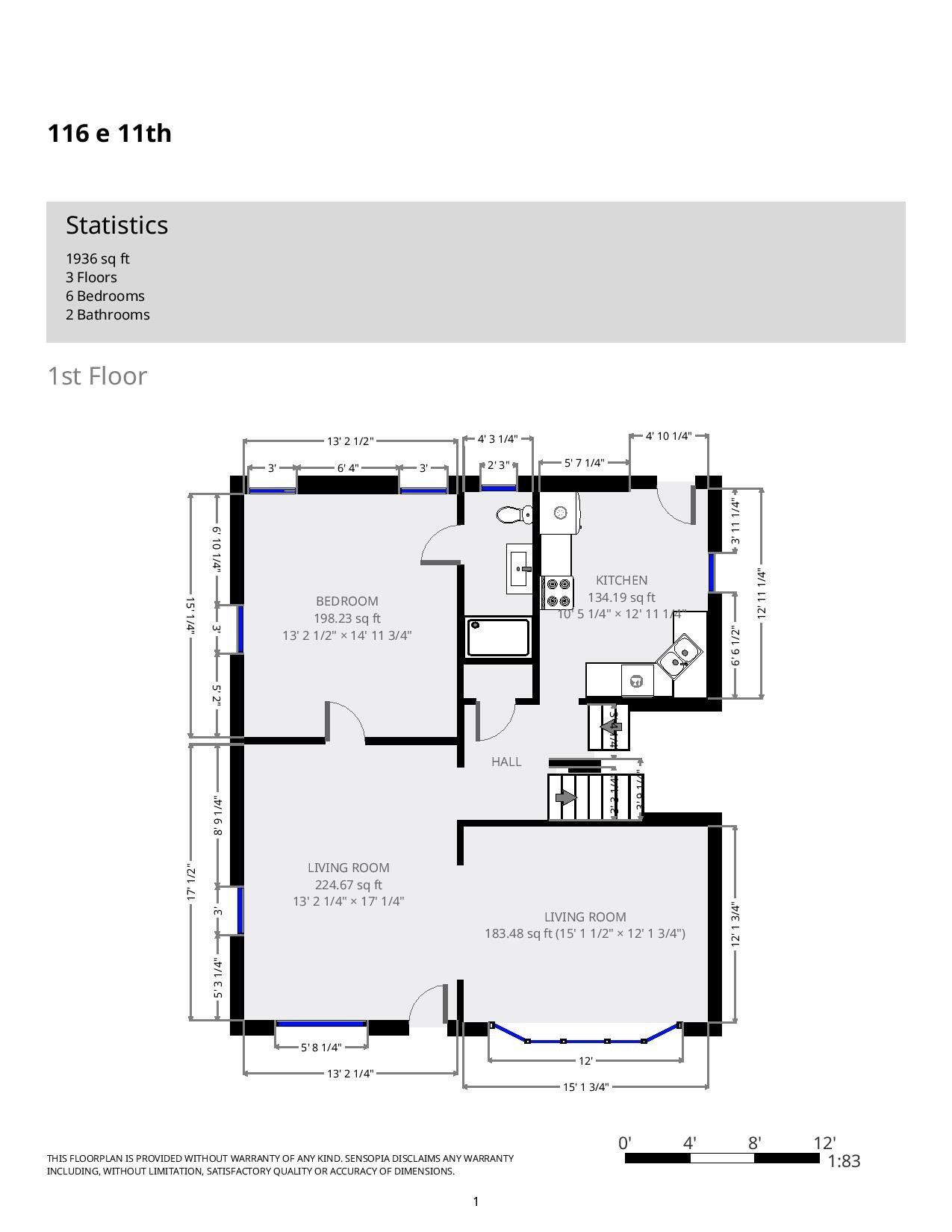
Updated six bedroom, two bath house with fully equipped kitchen (including dishwasher), central air, washer/dryer, porch, and ceiling fans. Off Street parking available.
View our Leasing Procedure and a copy of our Lease Agreement
View Virtual Tour HERE **information subject to change**
BEDROOm
BATHROOM






















