61 W. Oakland Ave.
Visit this link for Early Rental Options!
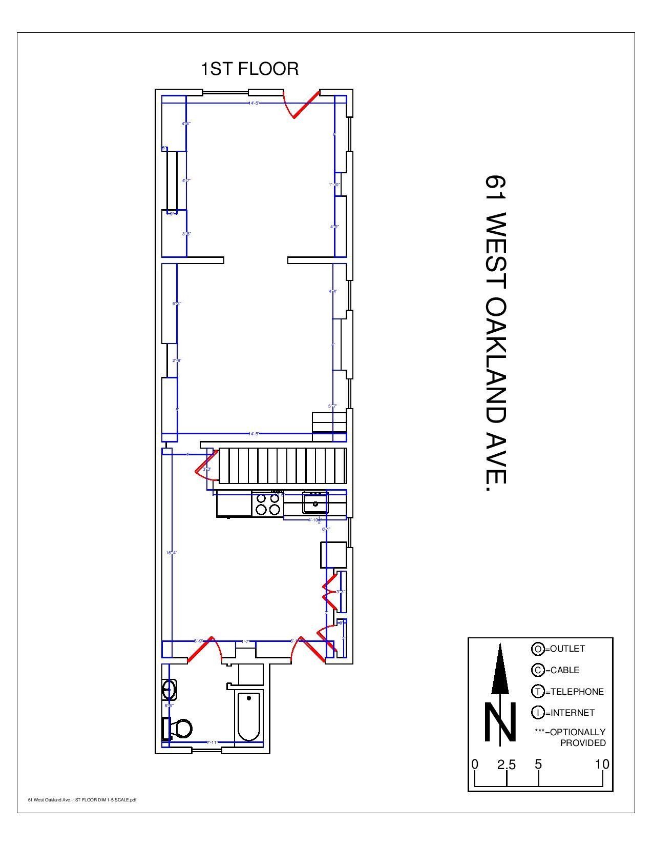
Spacious four/five bedroom half double features dishwasher, a/c, and in unit laundry. Off Street parking available.
View our Leasing Procedure and a copy of our Lease Agreement
View Virtual Tour HERE
**information subject to change**
4
BEDROOm
2
BATHROOM
































