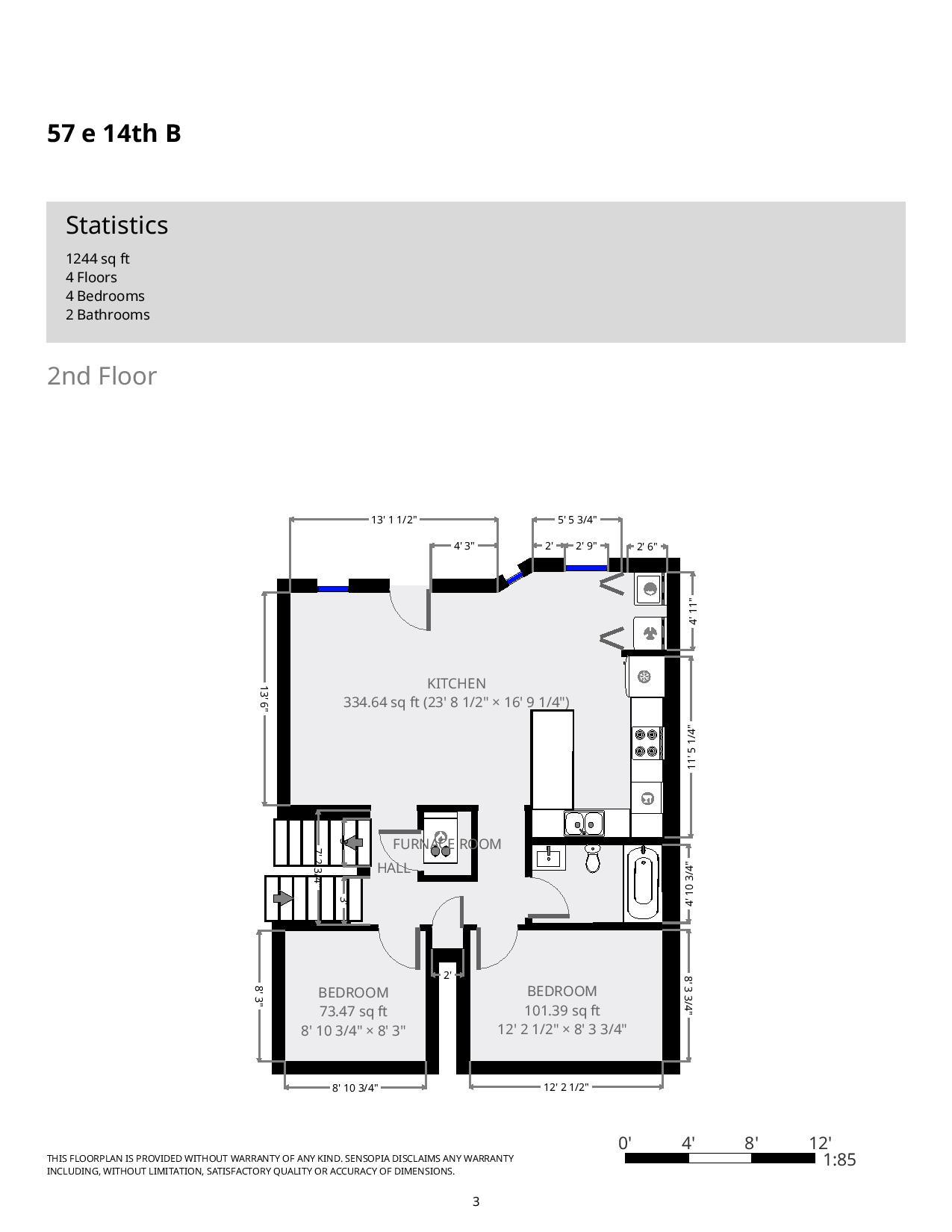
57 E. 14th Ave. Unit B
Visit this link for Early Rental Options!
Updated four bedroom, two bath townhouse features a dishwasher, central air, deck, and in unit laundry. Off Street parking available.
View our Leasing Procedure and a copy of our Lease Agreement
View Virtual Tour HERE
**information subject to change**
4
BEDROOm
2
BATHROOM















