Visit this link for Early Rental Options!
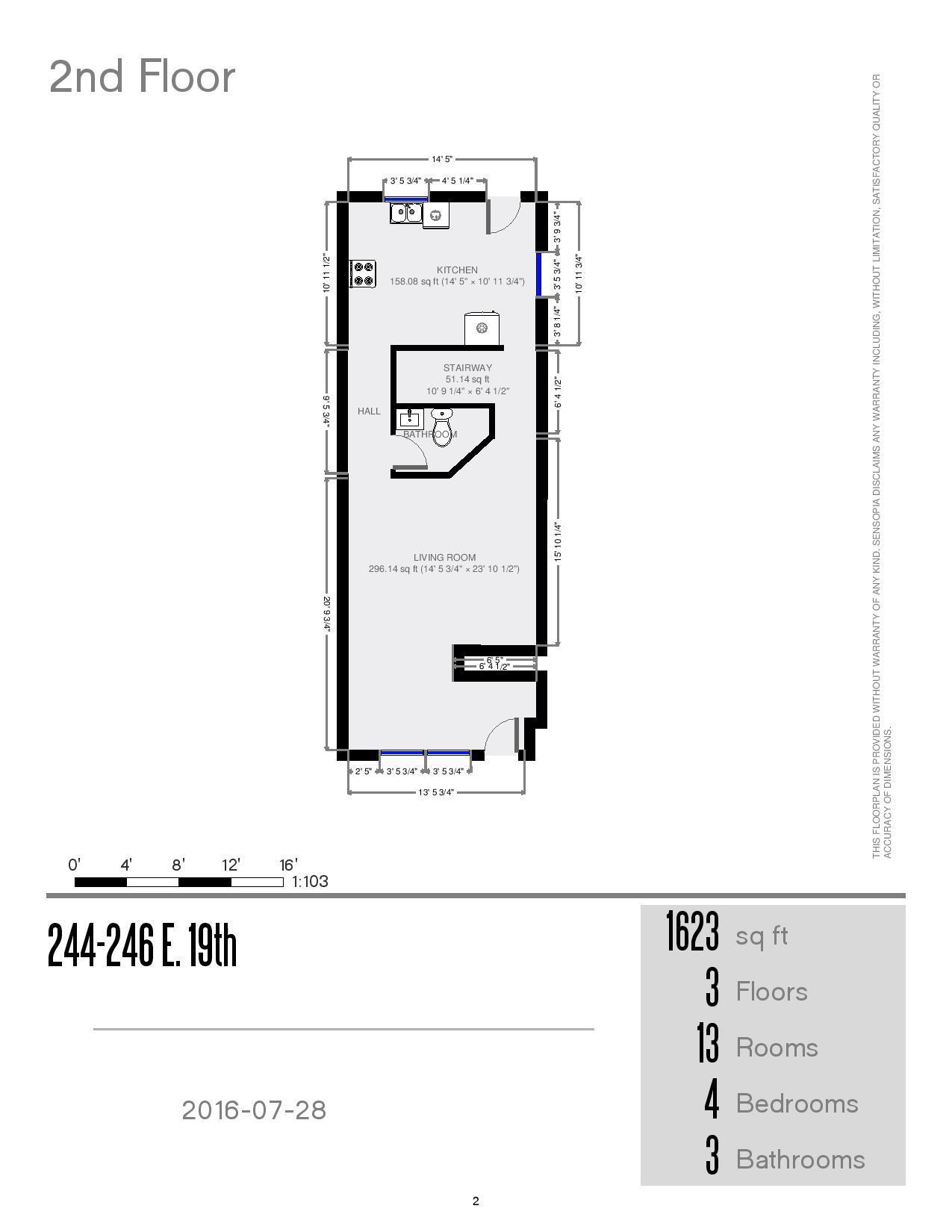
These updated four bedroom units feature fully equipped kitchens (including dishwasher and microhood), ceiling fans, central air, front AND back porches, and in unit laundry. Off Street parking available.
View our Leasing Procedure and a copy of our Lease Agreement
View 244 E. 19th Ave. Virtual Tour HERE
**information subject to change**
4
BEDROOm
BATHROOM

















