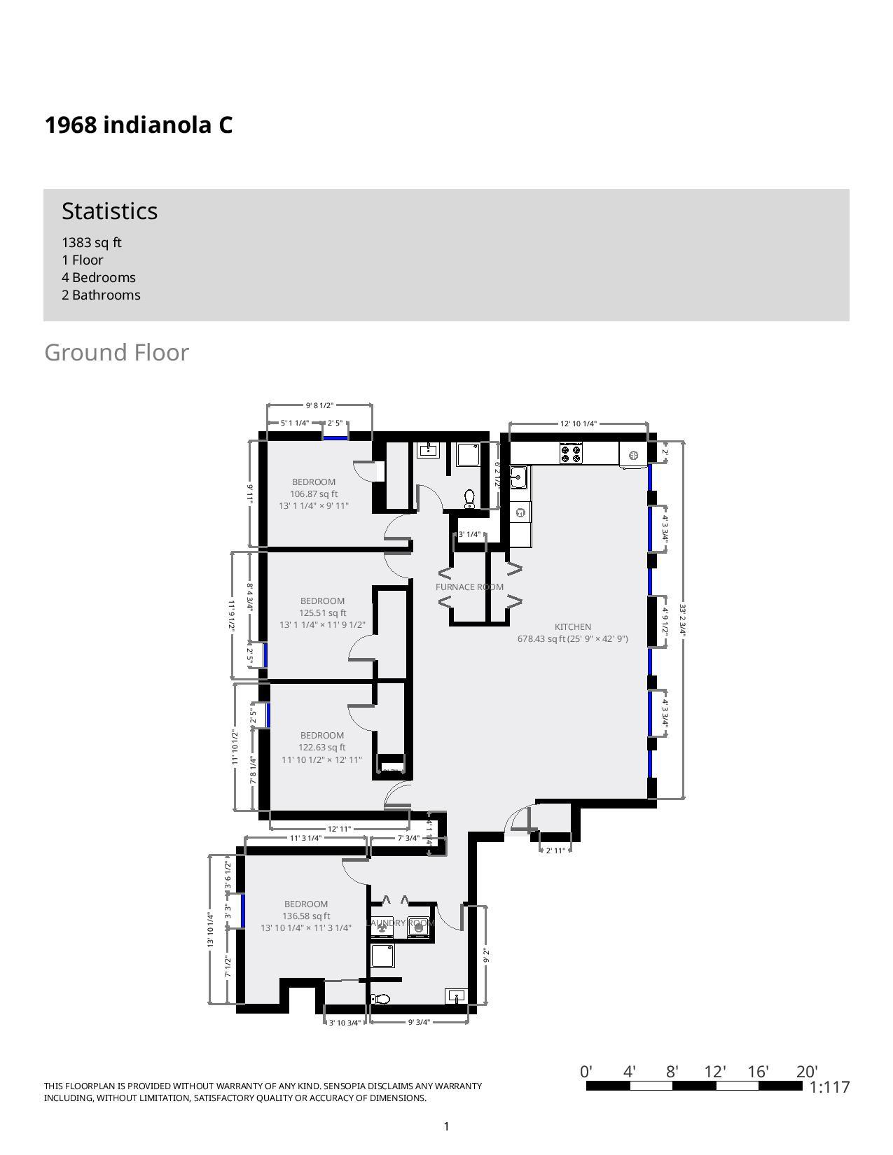
1968 Indianola Ave. Apt. C & Apt. D
Completely remodeled four bedroom, two bath flat with fully equipped kitchen (including dishwasher and microhood), washer/dryer, alarm system, central air, and ceiling fans. Off Street parking available.
4
BEDROOm
2
BATHROOM


















