192 E. Lane Ave.
Visit this link for Early Rental Options!
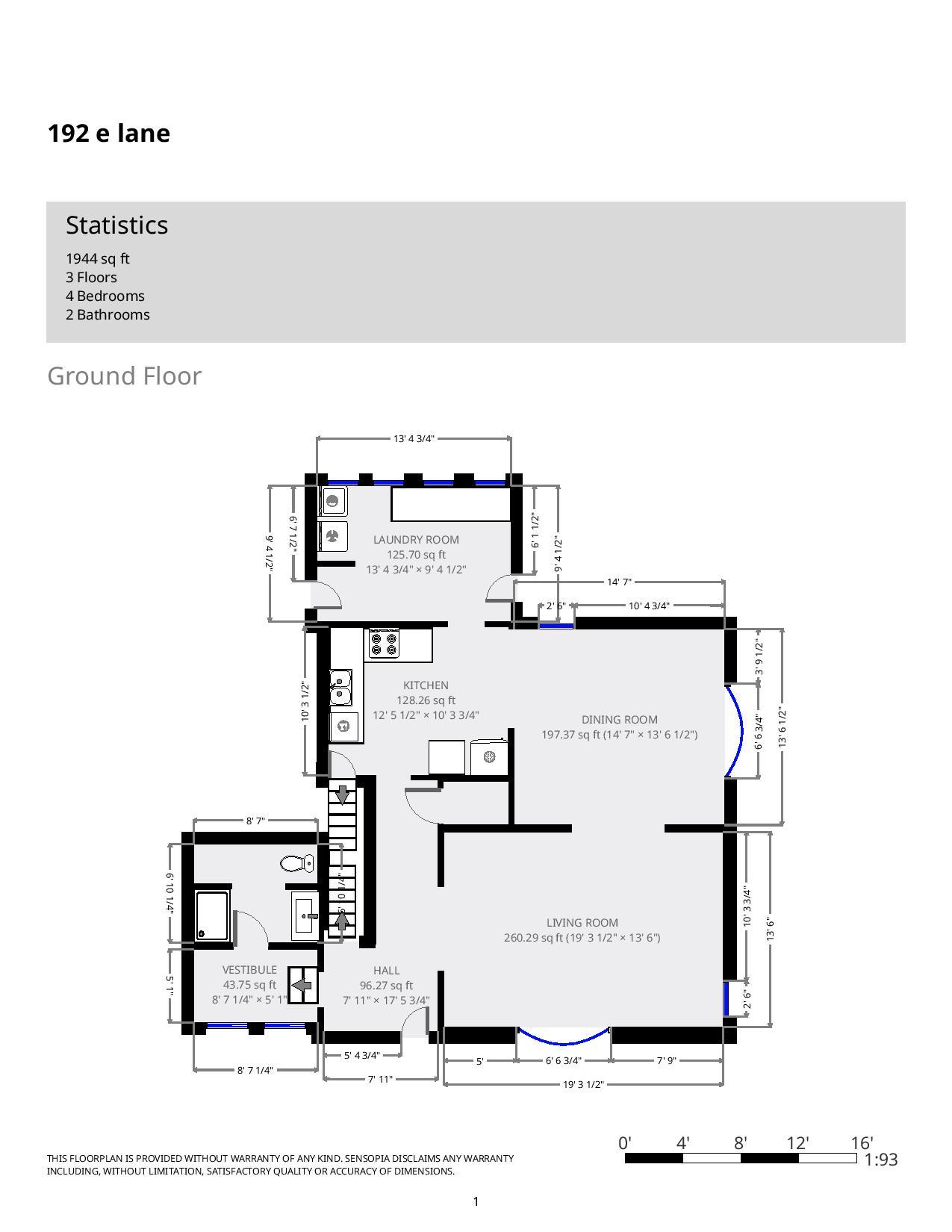
Spacious four bedroom flat with a fully equipped kitchen (including dishwasher and microhood), ceiling fans, central air, and in unit laundry. Off Street parking available.
View our Leasing Procedure and a copy of our Lease Agreement
**information subject to change**
4
BEDROOm
2
BATHROOM














