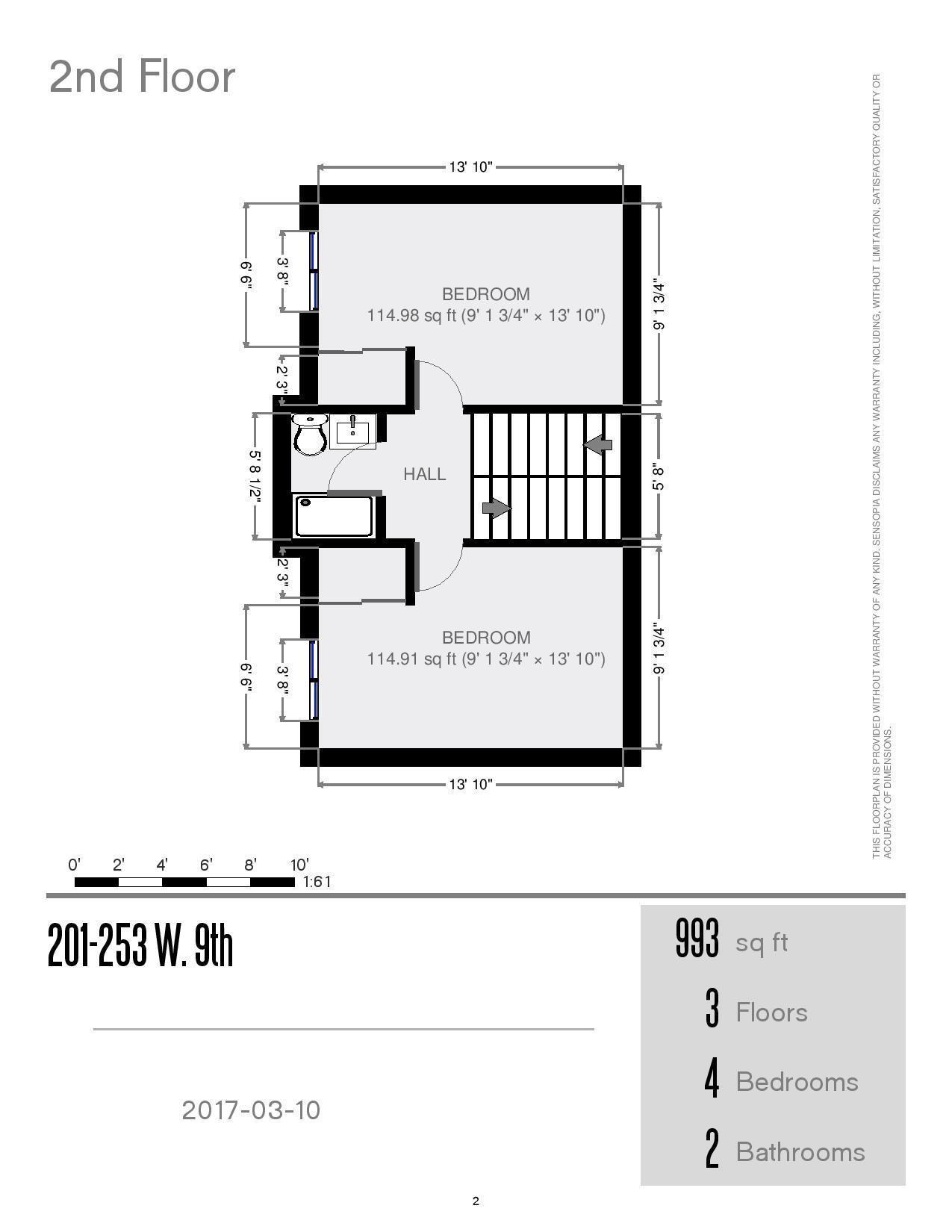
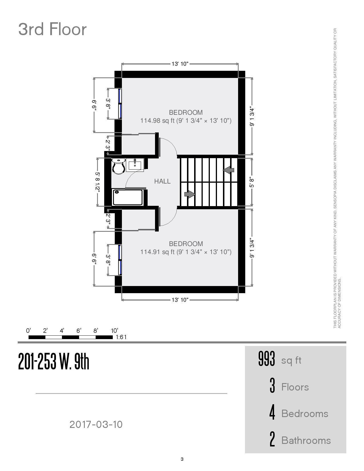
1574-1592 Worthington
Updated and Affordable! Located on corner of 10th and Worthington, this four bedroom, two bath townhouse features remodeled, fully equipped kitchen (with dishwasher and micro hood), central air, and coin op laundry onsite! Off street parking available!
4
BEDROOm
2
BATHROOM










