Visit this link for Early Rental Options!
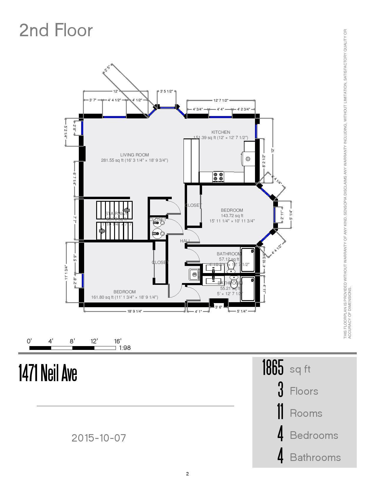
Renovated four bedroom, four bath townhouse with stainless steel appliances (range, refrigerator, dishwasher, microhood), ceilings fans, central air, and in unit laundry. Off Street parking available.
View our Leasing Procedure and a copy of our Lease Agreement
View Virtual Tour HERE
**information subject to change**
4
BEDROOm
BATHROOM




















