Visit this link for Early Rental Options!
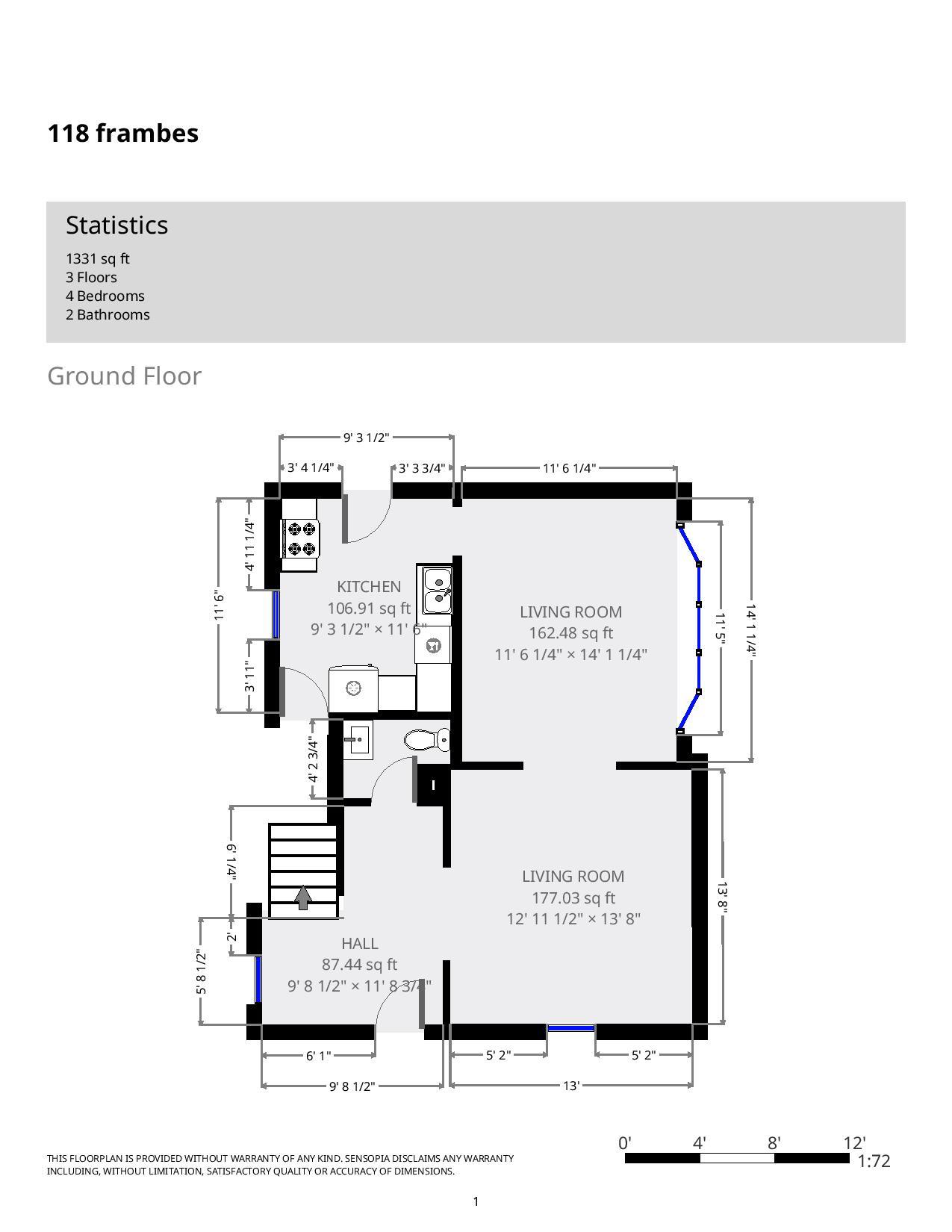
Updated four bedroom, one and a half bath house with fully equipped kitchen (including dishwasher and microhood), central air, in unit laundry, and porch. Off Street parking available.
View our Leasing Procedure and a copy of our Lease Agreement
View Virtual Tour HERE
**information subject to change**
4
BEDROOm
BATHROOM

















