188 E. Lane Ave.
Visit this link for Early Rental Options!
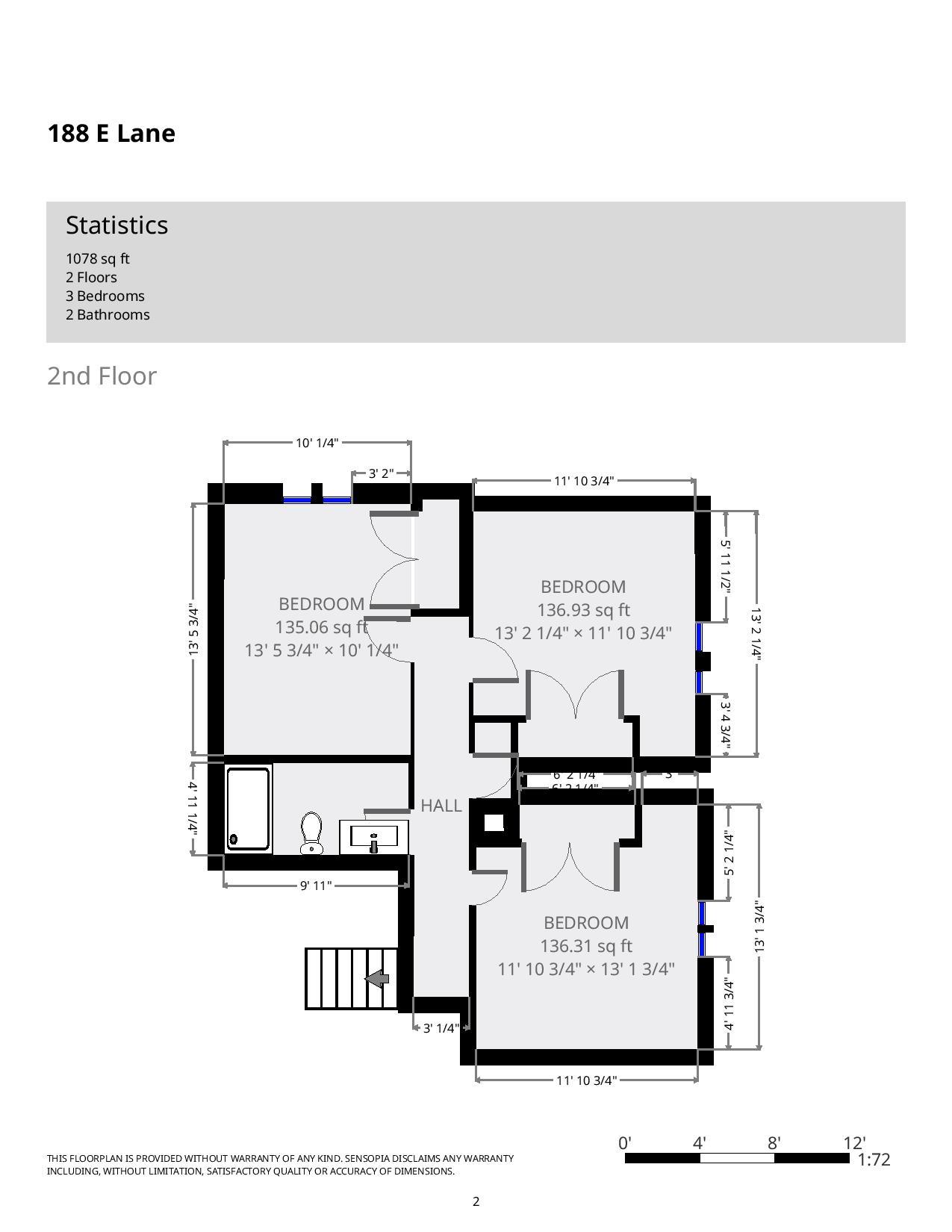
Updated three bedroom with fully equipped kitchen (including dishwasher and microhood), in unit laundry, central air, and ceiling fans. Off Street parking available.
View our Leasing Procedure and a copy of our Lease Agreement
View Virtual Tour HERE
**information subject to change**
3
BEDROOm
2
BATHROOM
















