Visit this link for Early Rental Options!
Updated and Affordable! Located on southwest campus, these three bedroom, two bath townhouses feature fully equipped kitchens (including dishwasher and microhood), in unit laundry and central air. Off Street parking available.
View our Leasing Procedure and a copy of our Lease Agreement
View 1558 Hunter Ave. Virtual Tour HERE
**information subject to change**
3
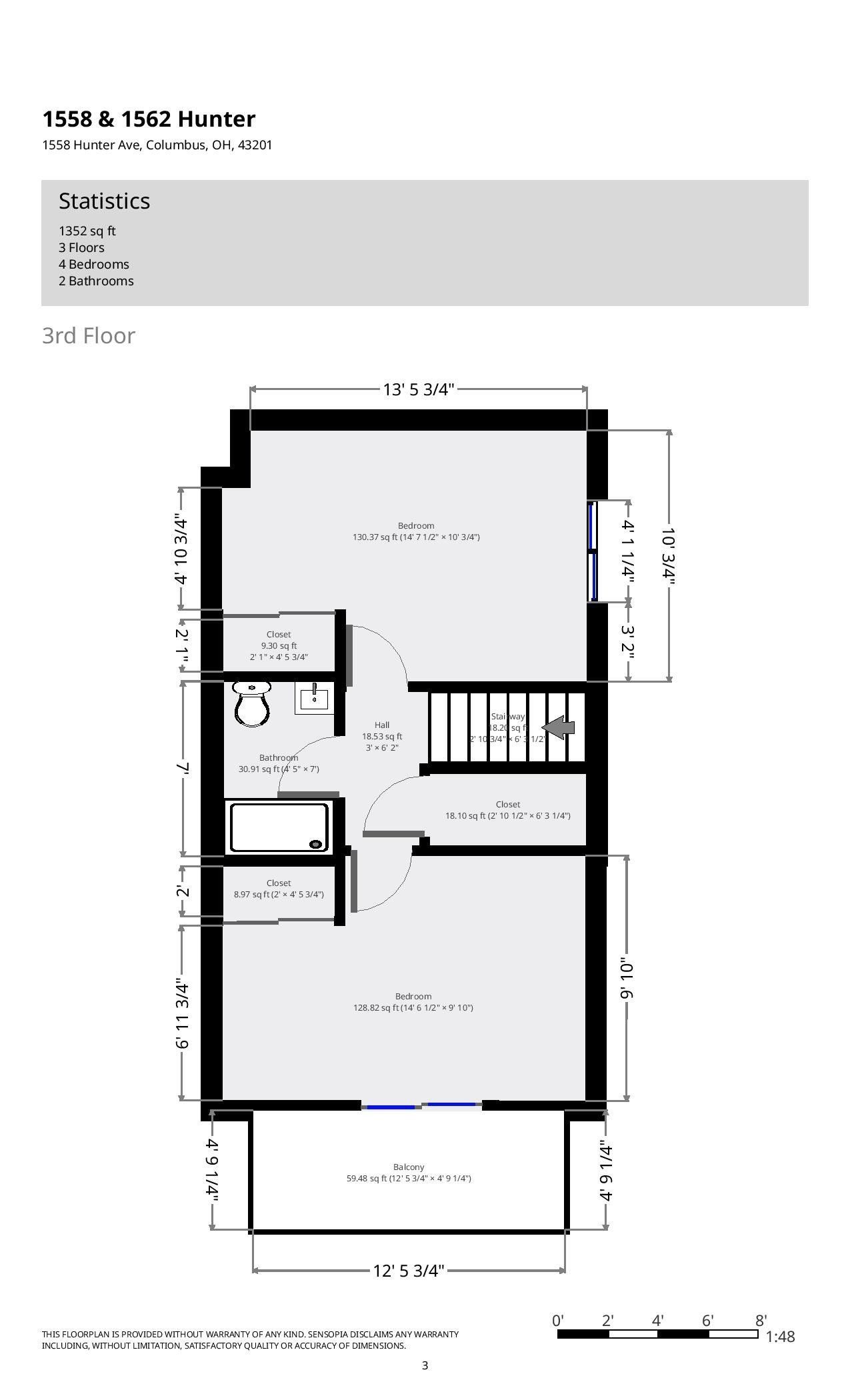
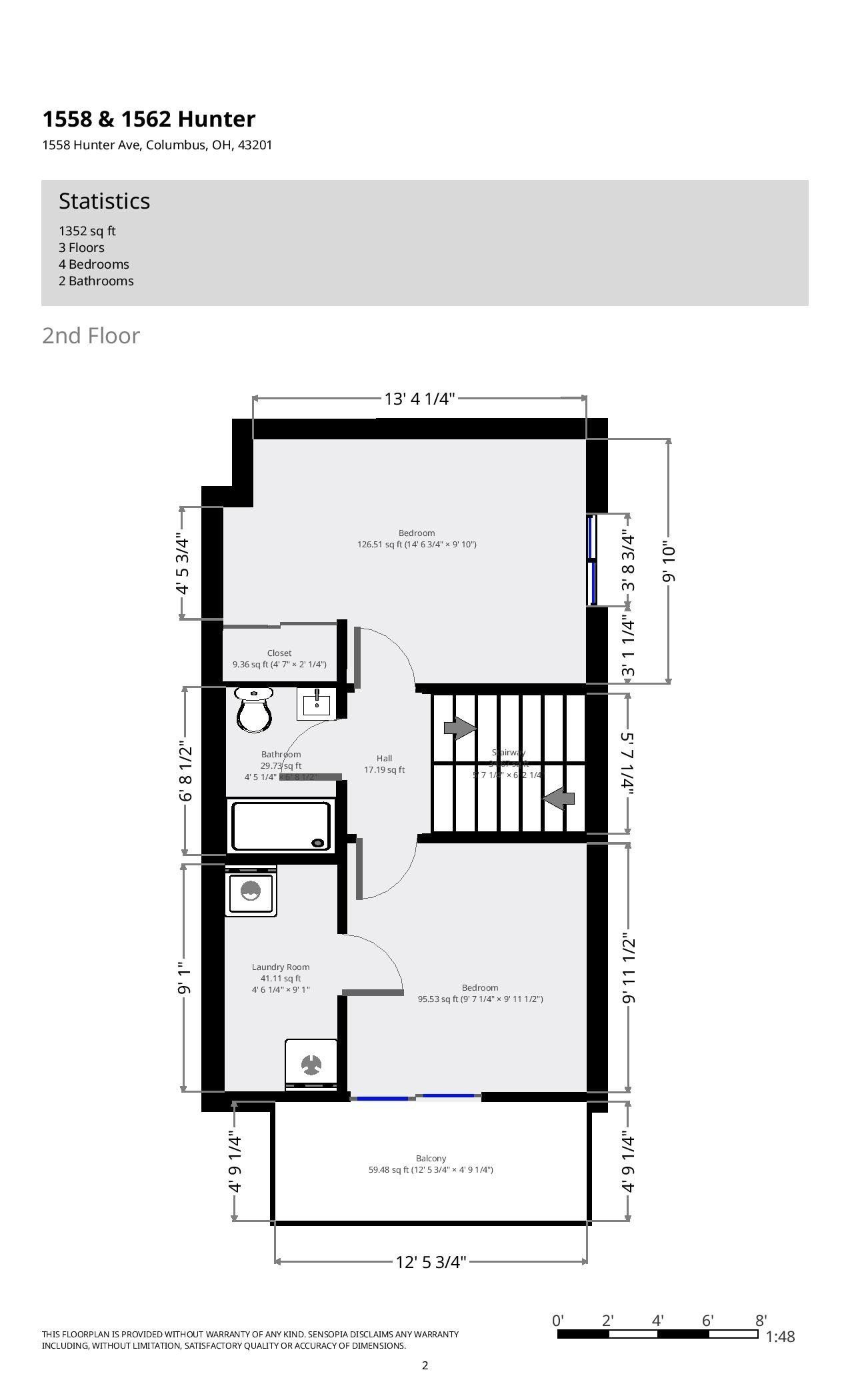
BEDROOm
BATHROOM































