Visit this link for Early Rental Options!
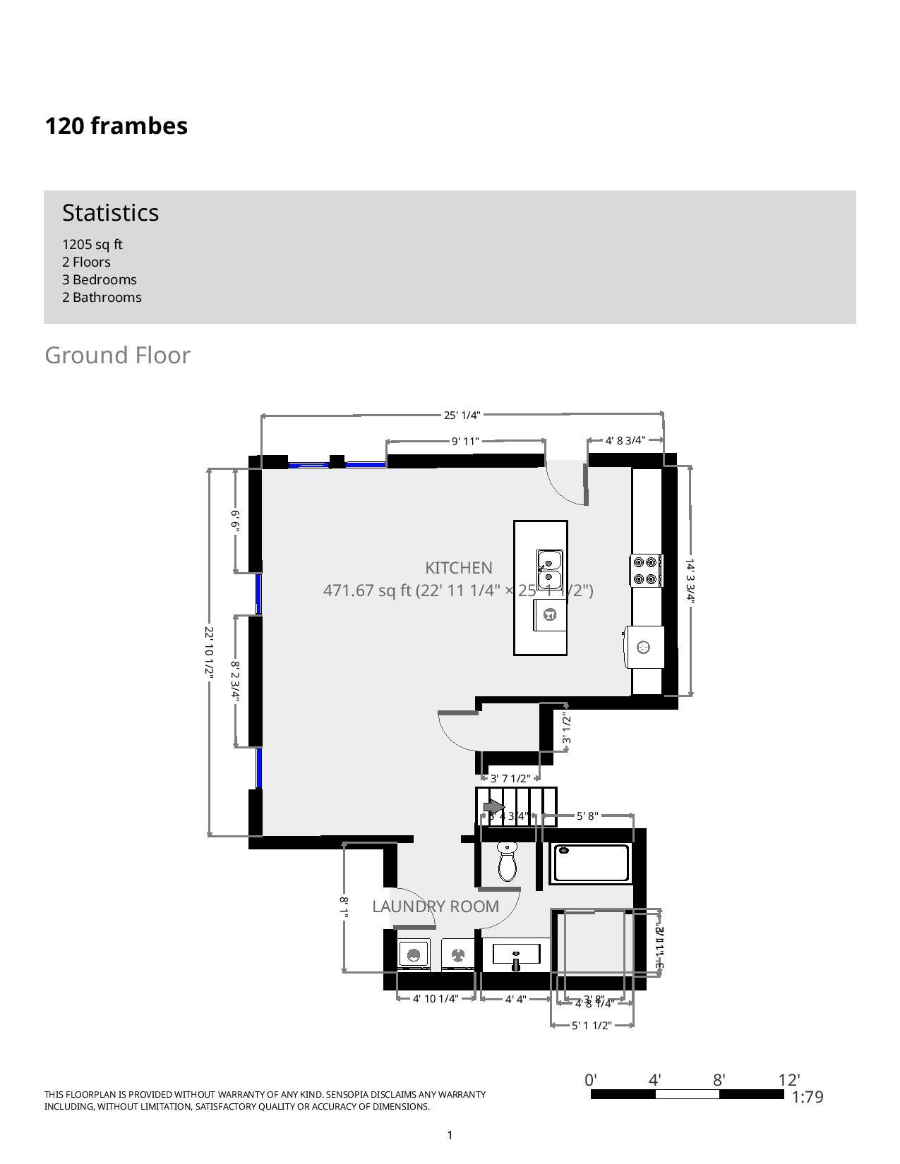
Renovated three bedroom, two bath townhouse with stainless steel appliances (range, refrigerator, dishwasher, microhood), ceiling fans, central air, and in unit laundry. Off Street parking available.
View our Leasing Procedure and a copy of our Lease Agreement
View Virtual Tour HERE
**information subject to change**
3
BEDROOm
BATHROOM

























