773 Riverview Dr.
Visit this link for Early Rental Options!
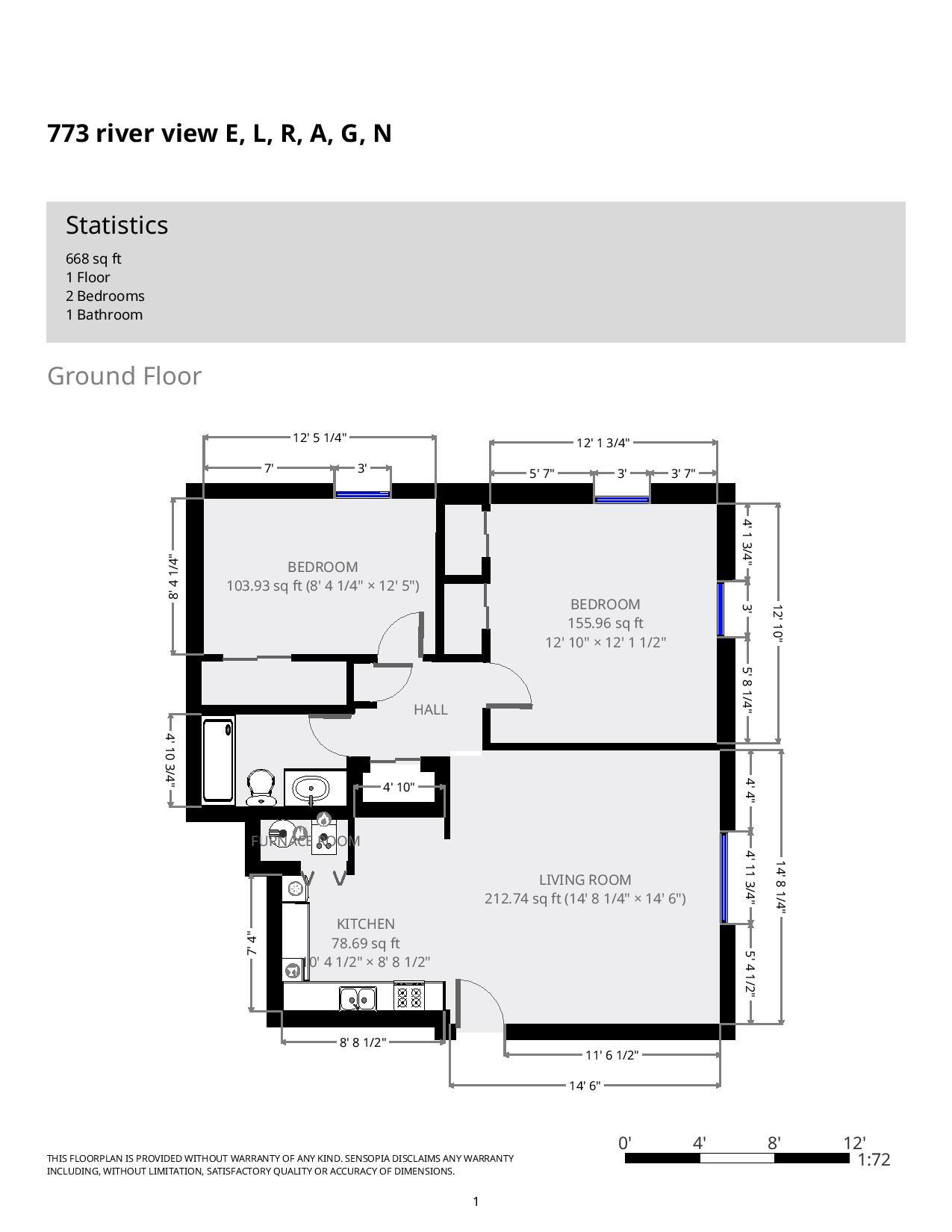
Large two bedroom flats located north of University District with A/C, coin op laundry onsite, and off street parking available!
View our Leasing Procedure and a copy of our Lease Agreement
View Virtual Tour HERE
**information subject to change**
2
BEDROOm
1
BATHROOM












