Visit this link for Early Rental Options!
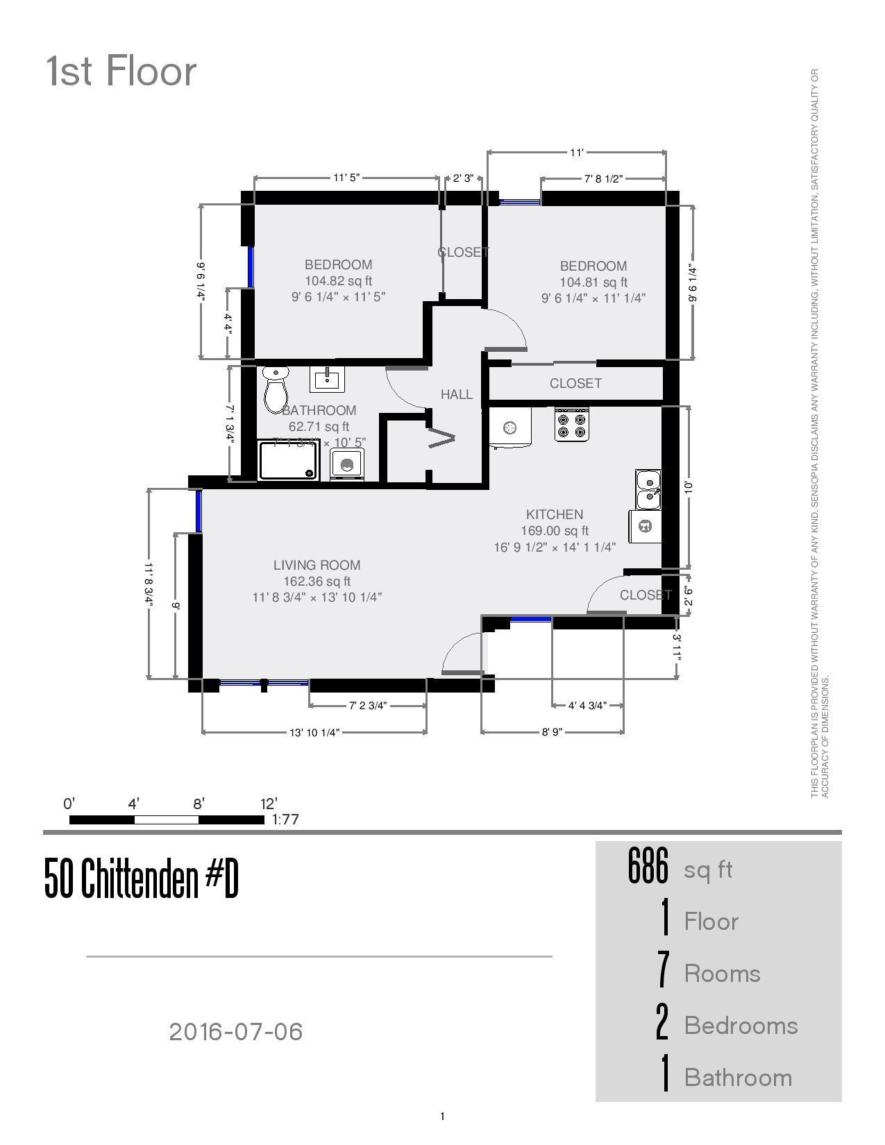
Previously reconstructed two bedroom, one bath flat with fully equipped kitchen (including dishwasher and microhood), washer/dryer, and central air. Off Street parking available.
View our Leasing Procedure and a copy of our Lease Agreement
View A, C, D, E Virtual Tour HERE
View B Virtual Tour HERE
**information on this flyer subject to change**
2
BEDROOm
BATHROOM




