Visit this link for Early Rental Options!
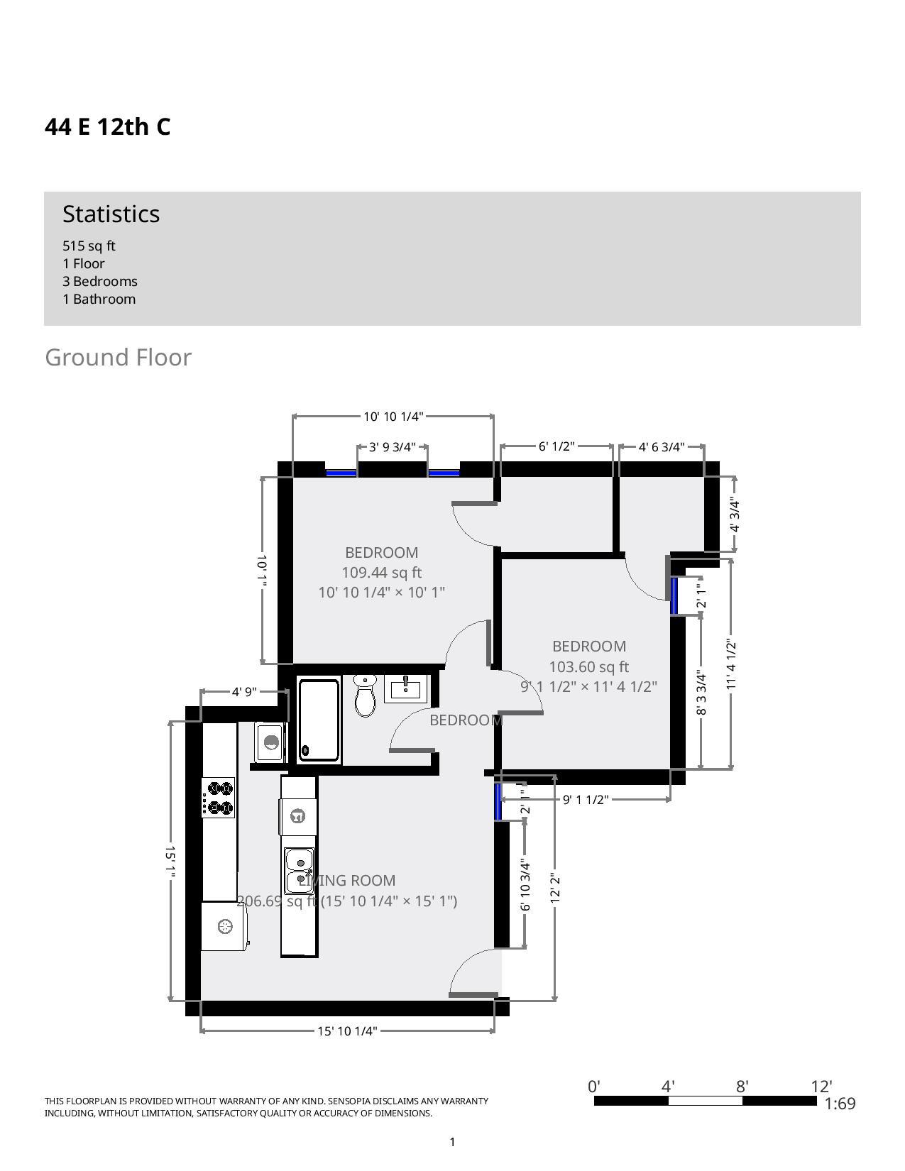
Located near 12th and Pearl, this previously updated unit features a fully equipped kitchen (including dishwasher and microhood), central air, porch, and in unit laundry. Off street parking available!
View our Leasing Procedure and a copy of our Lease Agreement
View Virtual Tour HERE
**information subject to change**
2
BEDROOm
BATHROOM






















