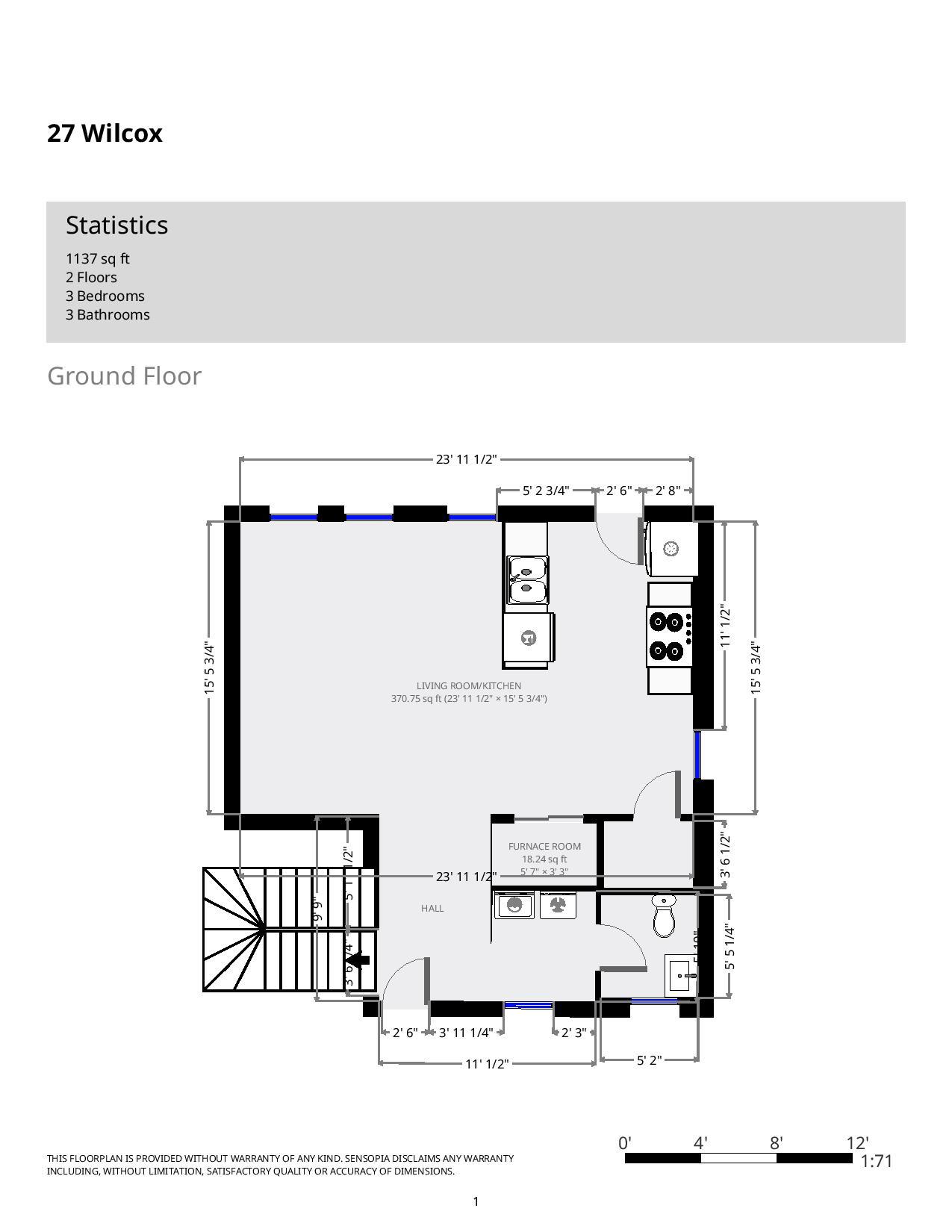
27-31 Wilcox St.
Visit this link for Early Rental Options!
Updated units feature central air, microhood, in unit laundry, off-street parking, porch, and dishwasher!
View our Leasing Procedure and a copy of our Lease Agreement
View Virtual Tour HERE
**information subject to change**
2
BEDROOm
2.5
BATHROOM






























