Visit this link for Early Rental Options!
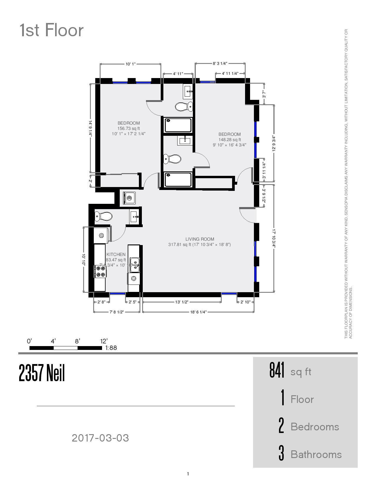
Fully remodeled two bedroom, two bath unit with stainless steel appliances (range, refrigerator, dishwasher, microhood), in unit laundry, central air, and off street parking.
View our Leasing Procedure and a copy of our Lease Agreement
View Virtual Tour HERE
**information subject to change**
2
BEDROOm
BATHROOM

















