Visit this link for Early Rental Options!
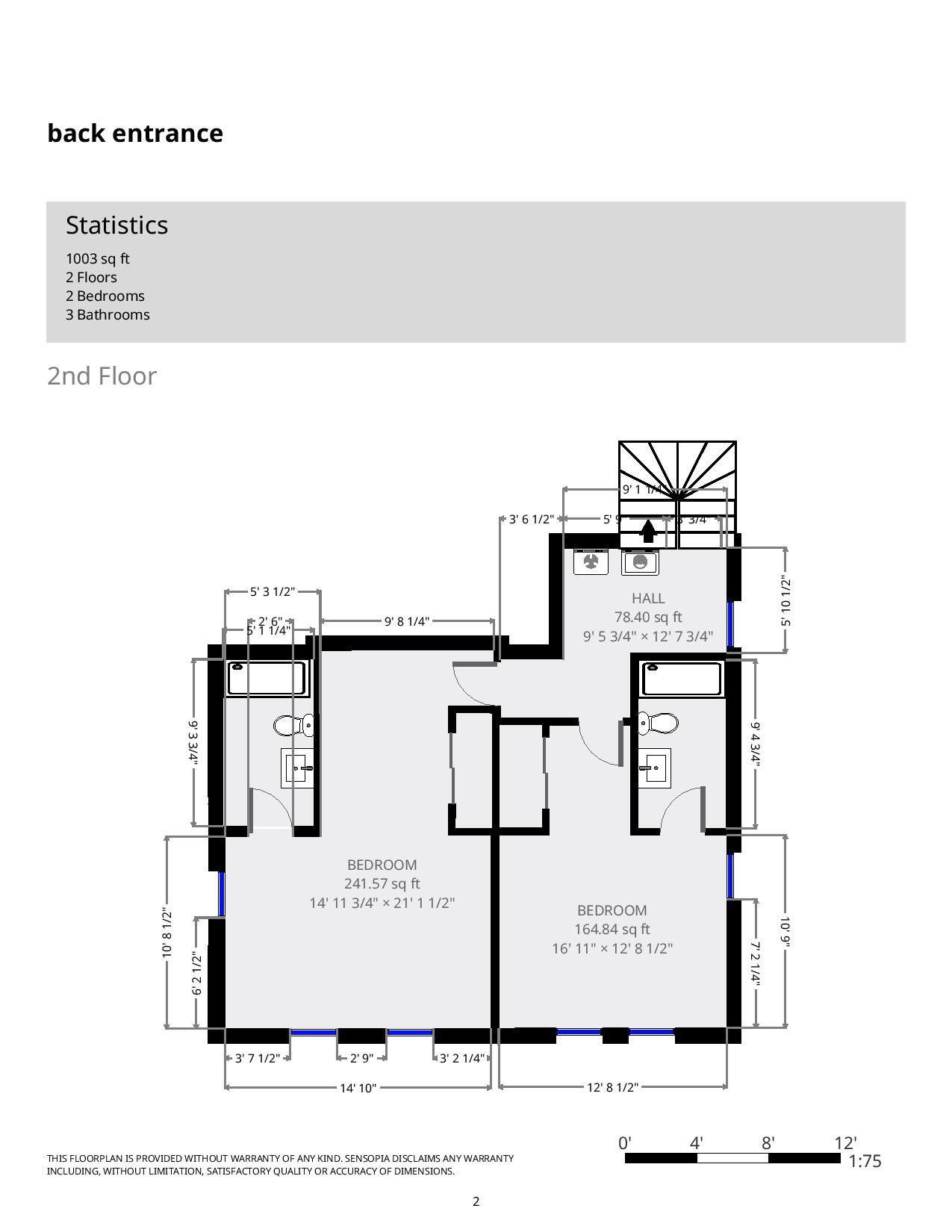
Buckeye New Build for 2018! Remodeled two bedroom, two and a half bath townhouse with stainless steel appliances (range, refrigerator, dishwasher, microhood), in-unit laundry, central air, and ceiling fans. Off street parking available.
View our Leasing Procedure and a copy of our Lease Agreement
View Virtual Tour HERE
**information subject to change**
2
BEDROOm
BATHROOM



















