145 King Ave.
Visit this link for Early Rental Options!
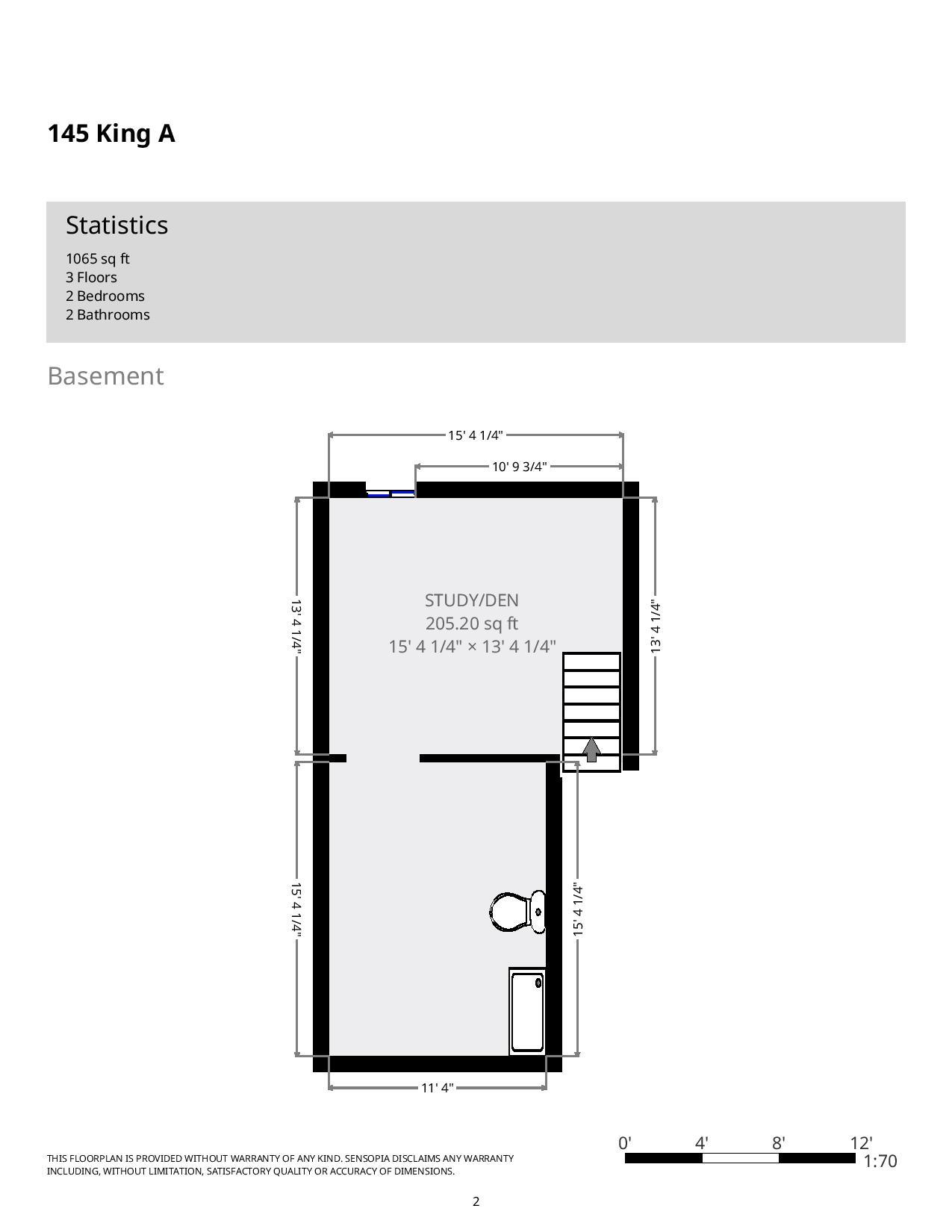
Large two bedroom townhouse with central air, in unit laundry and off street parking available!
View our Leasing Procedure and a copy of our Lease Agreement
View Virtual Tour HERE
**information subject to change**
2
BEDROOm
1
BATHROOM


























