Visit this link for Early Rental Options!
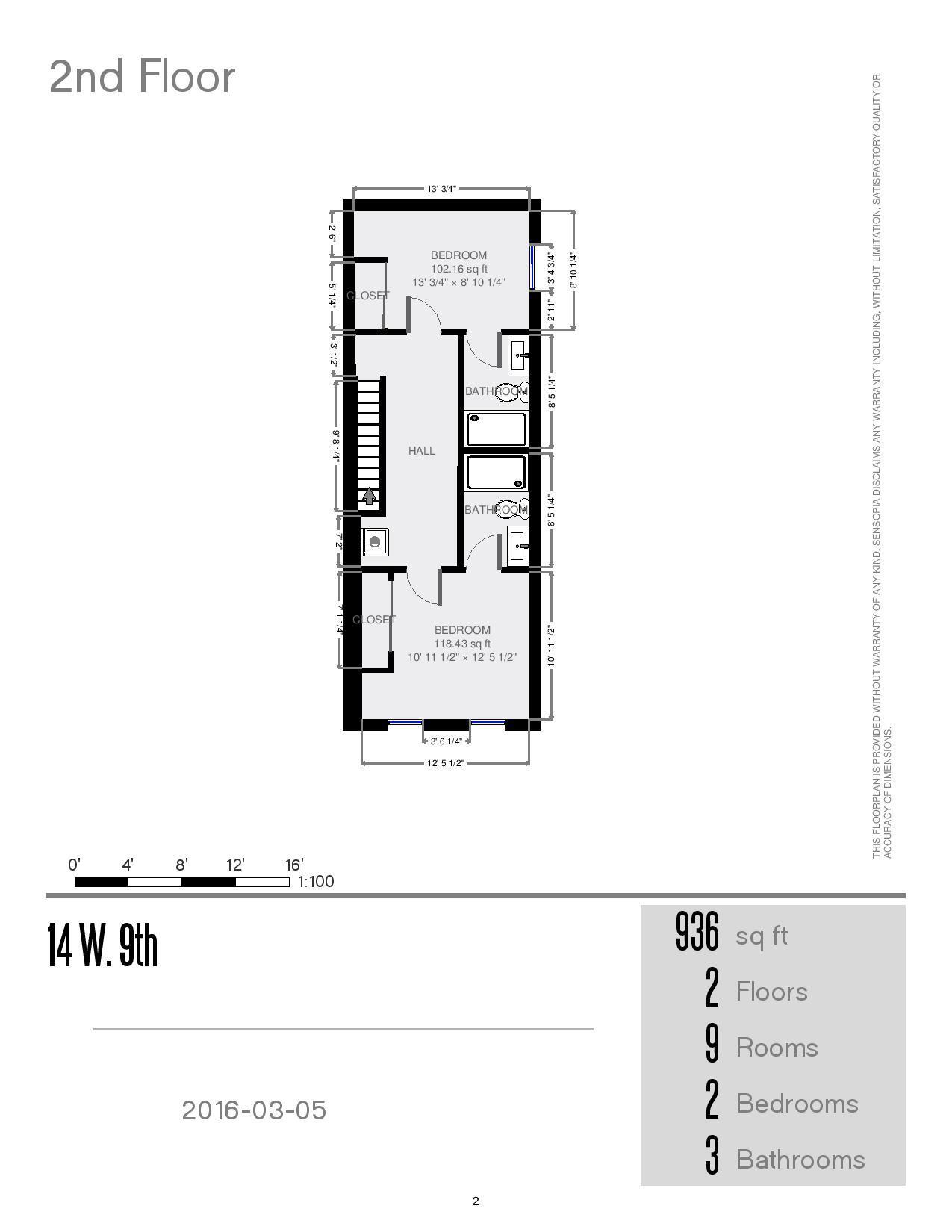
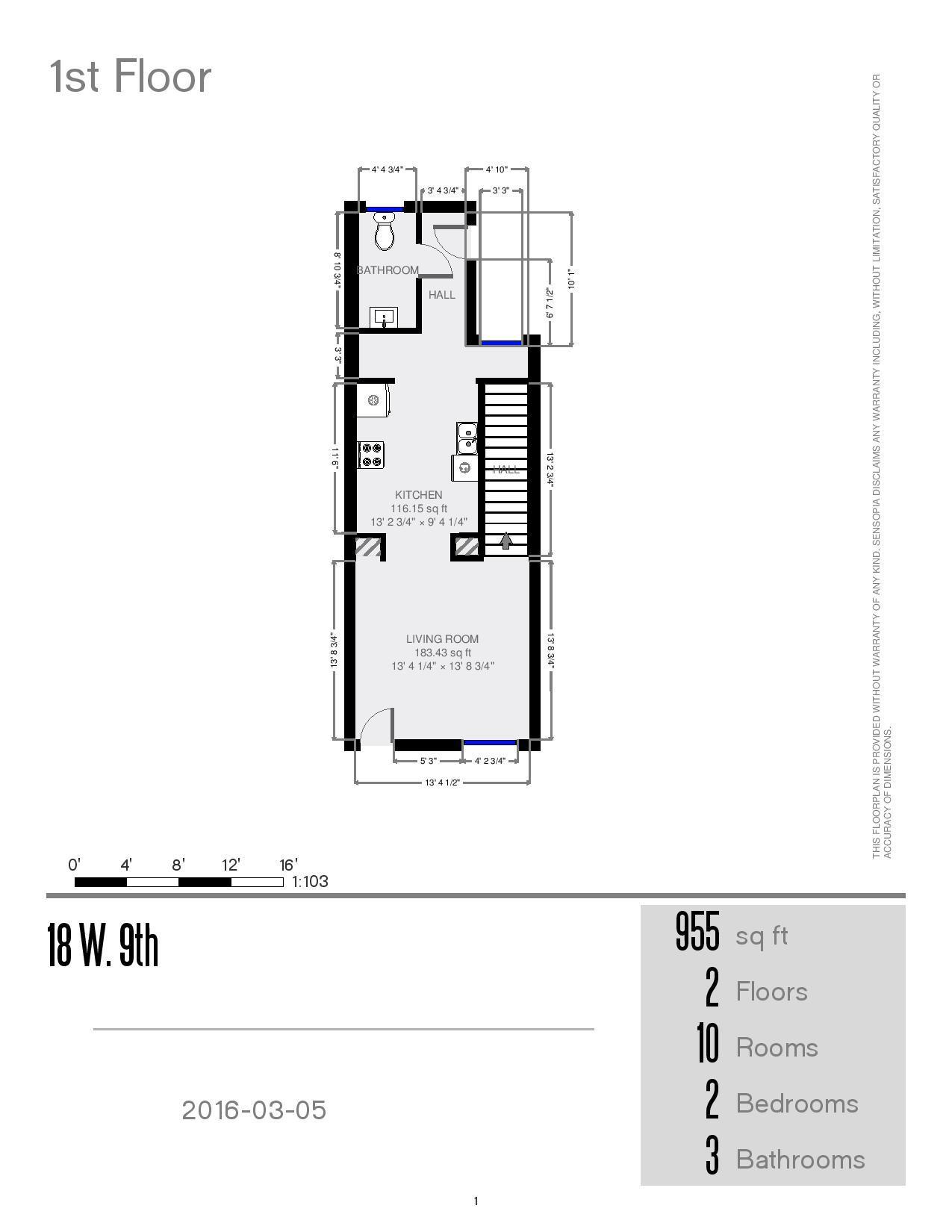
Fully renovated two bedroom, two and a half bath townhouse with stainless steel appliances (range, refrigerator, dishwasher, microhood), in unit laundry, and central air.
View our Leasing Procedure and a copy of our Lease Agreement
View Virtual Tour HERE
**information subject to change**
2
BEDROOm
BATHROOM
































